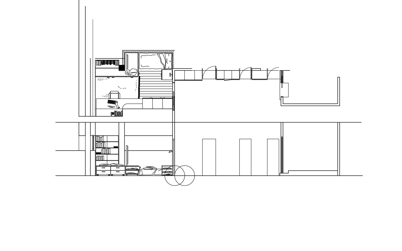
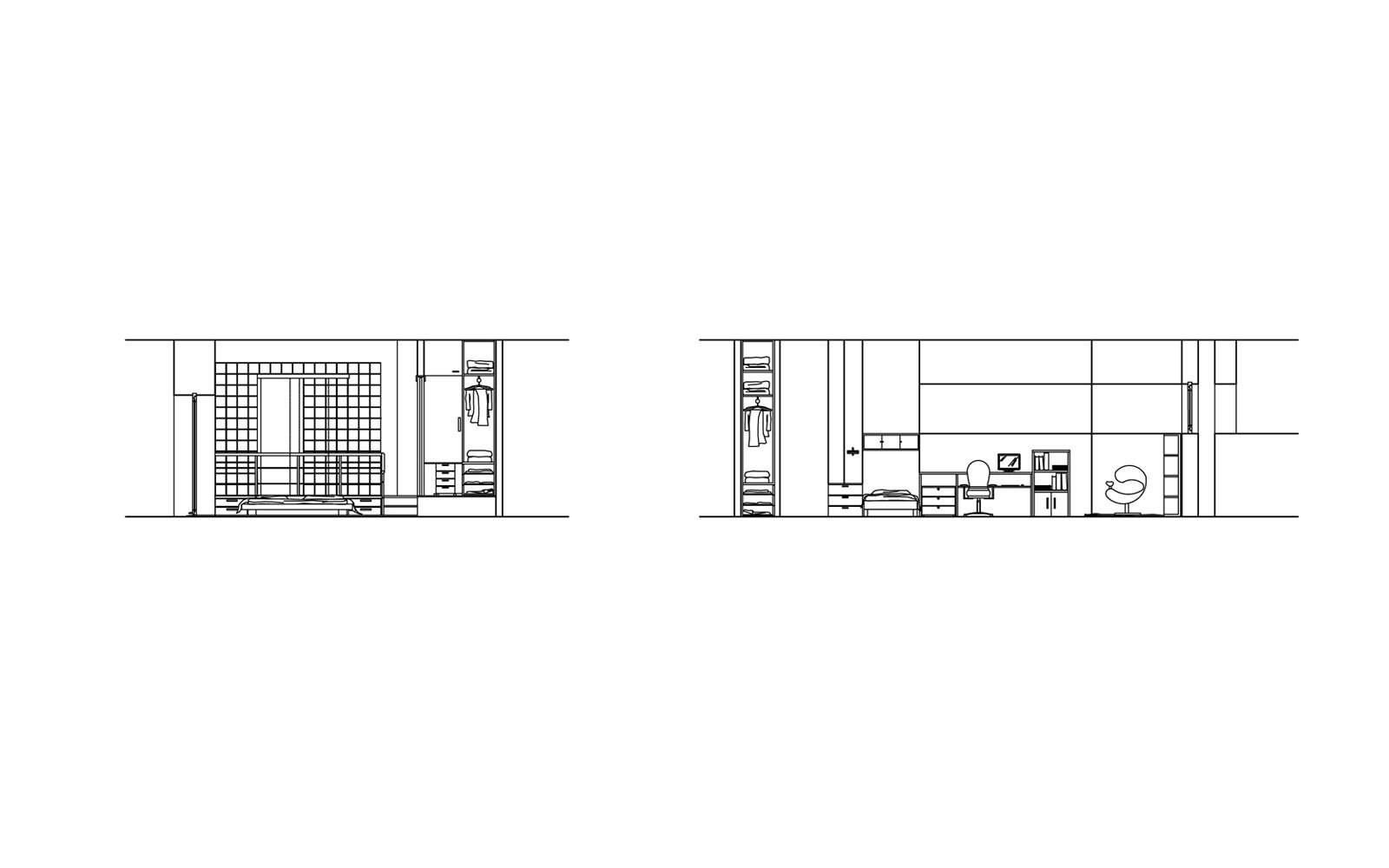
lA CAsA illuminAtA
anno 2008
cliente CORDUAS
Lorem ipsum dolor sit amet, consectetur adipiscing elit. Nulla laoreet dui lacus, sed mollis est placerat vitae. Nullam tellus sem, varius a tortor non, gravida suscipit nisi. Aenean varius ante id fermentum faucibus.
Proin pellentesque nibh at laoreet eleifend. Etiam eget nibh libero. Mauris neque metus, fringilla ac nisi et, feugiat condimentum sem. Sed eu purus elit.






