1
/
2
Creations
Concept Studio
1,61
Collaboration
Contact
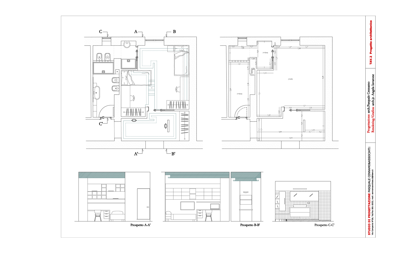
CAsA del r,ACConto
anno
2012
cliente
MAZZUCHIELLO
aaaaa
Previous
Next
Impossibile visualizzare il filmato. Installa il
plugin flash